Descrizione

PRATI FISCALI, Via di Prato rotondo
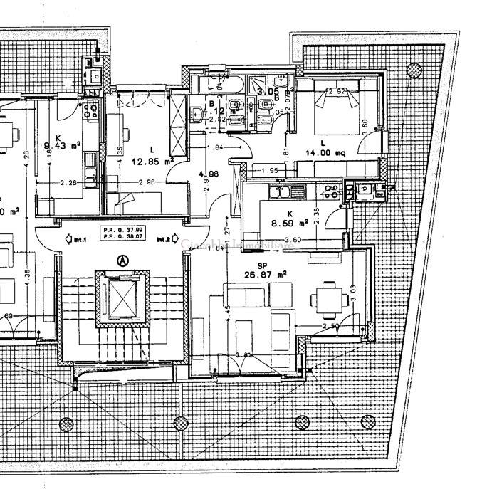
Appartamento in palazzina di recente costruzione composto da soggiorno a vista, due camere, cucina semi abitabile, ampio disimpegno, doppi servizi (uno cieco), terrazzo angolare abitabile. Triplo affaccio.
Box auto di pertinenza di 25 mq al piano -2 con facilità di manovra e possibilità di mettere una seconda auto in fila.
EURO 435.000,00

CARATTERISTICHE APPARTAMENTO

Piano: 1
Mq commerciali: 101
Mq calpestabili: 80
Riscaldamento: autonomo
Esposizione: S/E, N/E, N/O
Stato manutenzione: buono

CARATTERISTICHE STABILE

Piani: 4
Ascensore: presente
Portiere: assente
Barriere architettoniche: assenti
Tipologia: tinta
Stato manutenzione: buono

ALTRE CARATTERISTICHE

Infissi: alluminio, due vetri
Pavimenti: misti (gres, parquet)
Climatizzatori: presenti
Porta d’ingresso: blindata
Riscaldamento acqua: gas

IMPIANTI

Elettrico: buono stato
Idrico: buono stato
Certificazioni: assenti

SPESE

Condominio:€ 110,00 mese ca.
Riscaldamento: a consumo

CATASTO

Categoria: A/2 + C/6
Rendita catastale: € 1136,21 + € 153,65
Pertinenze: box auto di 25 mq (lunghezza 6,30x3,50 - entrata 2,44 circa)

ALTRI DETTAGLI

Classe energetica: da redigere
Arredo incluso: possibilità di arredamento a parte

Disponibilità per vederlo: da concordare


Caratteristiche principali

Stato Immobile
Buono
Grado
Medio
Orientamento
Nord Ovest Sud Est
Lati Liberi
3
Arredi
Possibilità
Tipo Soggiorno
Soggiorno
Tipo Cucina
Semi Abitabile
Riscaldamento
Autonomo
Tipo Riscaldam.
Caldaia
Tipo Impianto
Radiatori
Fonte Energetica
Metano
Acqua Calda
Autonoma
Raffrescamento
Split
Infissi
Alluminio Doppio Vetro
Serramenti
Buono
Persiana
Tapparella PVC
Pavim. Giorno
Gres Porcellanato
Pavim. Notte
Parquet
Pavim. Cucina
Gres Porcellanato
Pavim. Bagno
Gres Porcellanato
Accesso Disabili
Nessuna Barriera
Accessori: Aria Condizionata, Ascensore, Doppi Vetri, Passaggio Automobilistico, Porta Blindata, Tapparelle Elettriche, Zanzariere

Mappa

via di prato rotondo , Roma (RM)

Richiedi informazioni

Invia
Cookie preference